電芯自動面墊分選裝盒生產線BT-2113B2

1.1設備適用范圍:
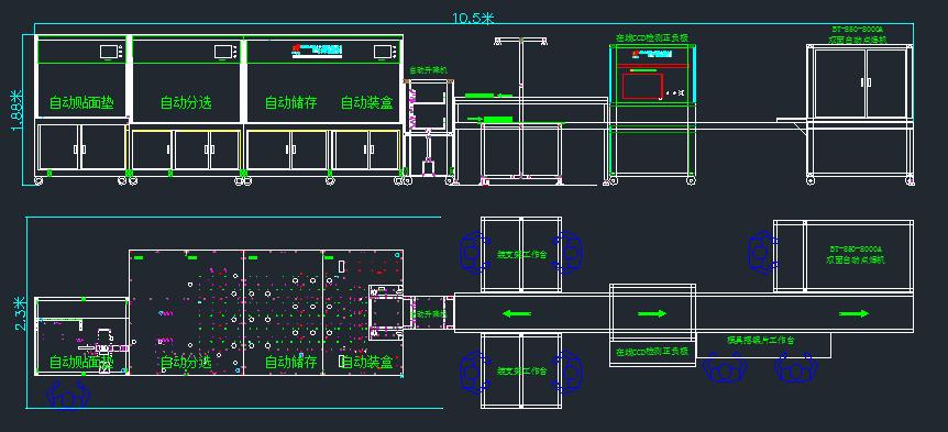
主要在用于18650和21700電芯的自動貼面墊分選和自動裝盒自動化生產
1.2 采用HK3562十二路高精度測試儀
1.3可選擇電芯掃碼功能,可作為電芯OCV比對,挑選出不良品,數據可上傳服務器
1.4采用伺服電機和模組配合,精確的控制好位置精度
1.5上料采用料斗方式儲存電芯,最多約300PCS(18650)
1.7采用內尺寸L350MM*W200MM*H100MM膠盒,數量10個/條
1.08設備支持功能:
人工將電芯裝入面墊機料斗→自動貼面墊→自動掃碼(可選)→自動分選(5檔OK,一檔NG)→料斗儲存電芯(最多約220PCS)(可選)→裝盒機械手→自動裝入膠盒(按設定數量抓取)→人工整盒取料
1.09 生產效率:自動貼面墊→分選→自動入膠盒4000-5000PCS/H
人工入支架→點焊完成3500-4500PCS/H
貳. 設備組合簡介

BT-2113B2電芯自動面墊分選裝盒生產線實物圖

BT-2113B2電芯自動面墊分選裝盒生產線擺放圖 長10.5*寬2.3*高1.88米
叁.生產流程圖

肆.設備環境要求
1):電源:AC380V±10%,30KW 50HZ±10%
2):氣源:0.4-0.8Mpa,無水霧,無雜質
3):環境溫度:10-45℃
4):環境濕度:不大于85R.H(無水氣凝結)
5):環境無強烈震動,無腐蝕性氣體和易燃易爆的氣體存在
伍.設備技術參數
|
主要功能 |
技術參數 |
|
自動貼面墊
功能結構和BT-450-18650一樣
貼面墊后
|
l 使用電源:AC220V±10% 1.6KW 50HZ±10% l 氣源:0.4-0.8Mpa,無水霧,無雜質 l 采用4針沖墊機構,提高效率 l 采用變頻電機,凸輪方式沖墊,防止電芯損傷 l 采用日本高速鋼沖模,設計壽命5年 l 自動收卷廢料 l 采用臺灣上銀導軌,絲桿 l 下電芯電機采用臺灣臺力減速電機 l 取電芯機械手動力:閉環步進電機/伺服電機 l 電芯移位動力:步進電機 l 控制系統:XD-42T-E PLC編程器 l 操作界面:TG-765-UT彩色顯示屏,操作簡便 l 自帶故障報警系統(根據提示解除故障) l 青稞紙缺料自動報警 l 定量提醒沖模清潔 l 氣缸采用:亞德客/SMC/XINCHENG l 氣動控制元件:亞德客/SMC/天工/氣立可 l 感應器件:臺灣LIKE l 生產效率:4500-5000PCS/H
|
|
自動掃碼
動分選(5檔OK,一檔NG,) |
1.使用電源:AC220V±10% 0.6KW 50HZ±10% 2.采用海康威視600萬高清攝像機 3.采用30250定制光源,確保讀碼的準確性 4.識別系統:比斯特自主研發 5.攝像寬度:300*150MM以內 6.執行器件:工控機,正版WIN7系統 7.主要功能:電芯貼好面墊后,通過移料機械手,將電芯放入掃碼位置,啟動步進電機傳動齒輪,將電芯順時針旋轉,以讀取條碼綁定數據 未讀取到條碼的和測試不良的判為不良 11組齒輪傳動,加膠圈以增加對電芯的摩擦力,確保電芯正常旋轉,正常讀碼 8.掃描效率:5000PCS電芯/H以上
1.使用電源:AC220V±10% 1.6KW 50HZ±10% 2.氣源:0.4-0.8Mpa,無水霧,無雜質 3.采用臺灣上銀導軌,絲桿 4.取電芯機械手動力:閉環步進電機/伺服電機 5.控制系統:XD系列 PLC編程器 6.操作界面:TG-765-UT彩色顯示屏,操作簡便 7.數據儲存:工控機+17寸顯示屏 8.測試儀:標配HK3562高速測試儀,12路同時測試 測試檔位:5個OK檔位,1個NG檔 電壓精度:0.00001V 內阻精度:0.01毫歐 9. 測試針型號:KS-100A3000 10. 測試針壽命:80萬次 11.生產效率:5000-6000PCS/H |
|
取電芯入膠盒 |
取電芯入膠盒:根據后面需求,按數量從同一個檔位 取出,根據正反極,放到相應位置 效率: 5000-6000PCS/H
|
陸.調試檢測項
6.1自動貼面墊合格率
6.2掃碼部分讀碼合格率
6.3分選部分內阻電壓的反復測試精度,檔位5+1
柒,隨機資料
7.1設備合格證
7.2主要工位使用說明書
捌.設備驗收和標準
8.1第一階段:設備在出廠前預驗收,即設備在乙方廠家安裝調試基本功能符合雙方簽訂的技術協議內容,在乙方現場對設備的基本功能進行驗收,預驗收通過后,設備分拆成合適運輸,運到甲方安裝現場進行安裝調試,甲方可選視頻預驗收或者放棄預驗收
8.2第二階段:設備在甲方工廠安裝調試完成30天內完成驗收,超過30天后視為驗收合格,驗收標準按照甲乙方雙方簽訂的技術協議內容
玖.資訊保密
9.1如果產品侵犯了任何第三方的知識產權或技術秘密,致使雙方受到損失,另一方應承擔賠償責任
9.2本技術協議及后續更改部分變更為雙方的保密文件,未經甲方許可,乙方不能提供給第三方
拾. 售后服務
10.1甲方有義務免費對乙方設備使用人員進行安裝、調試、使用及維護保養方面的培訓工作,確保需方操作人員能正常獨立操作,維修人員能對一般性問 題進行獨立處理
10.2設備保修期為貳年,甲方按國家法規承擔三包責任,在非人為情況下設備發生故障,電話或視頻仍無法解決,(廣東省內)甲方人員需保證在24小時內(廣東省內)抵達現場,廣東省外48小時內抵達現場,采用調換、維護修理等措施為乙方提供免費設備保修。保修期滿后,終身維護,并以成本價格提供備品備件及易損件。非現場處理問題的,供方人員需在4小時內以郵件或書面明確回復,需現場處理的,接到通知后需48小時內趕到現場
掃描微信咨詢